PAMPLONA - CENTRO
AÑO: 2021
UBICACIÓN: PAMPLONA / NAVARRA
TIPO PROYECTO: REFORMA + INTERIORISMO
FOTOGRAFÍA: BERTA BUZUNARIZ @bertabuzunarizfotografia
Existen obras que te buscan y te encuentran. Nosotros nos sentimos así con este proyecto.
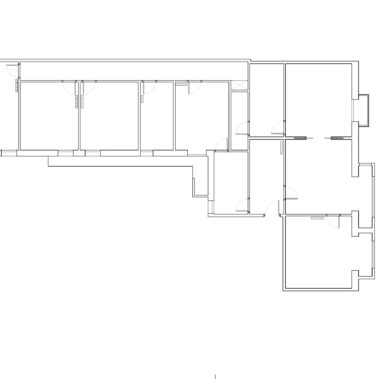
El espacio estaba escondido detrás de capas y capas de paredes y luces oscuras que lo habían acompañado durante muchos años.
La confianza de los clientes nos dio la oportunidad de sacar a la luz todo el potencial que el espacio tenía.
La zona privada de los dormitorios la dejamos tal y como estaba, ya que cumplía las necesidades de los clientes.
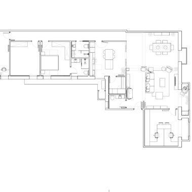
Nuestra mayor intervención fue en la zona pública donde ubicamos salón, comedor, cocina, lavandería, aseo y estudio.
La comunicación visual y los espacios abiertos fueron premisas en nuestra composición. Así pues, la cocina esta dividida/unida por medio de un cierre metálico pintado en blanco, se convierte en un escenario al cual mirar.
En la materialidad nos dejamos sorprender por las entrañas de la casa. Los antiguos arcos que estaban ocultos y los ladrillos de las paredes respiraron y vieron la luz. Le dieron al espacio una entidad muy especial.
El resultado son espacios abiertos y luminosos, donde se pone en valor las raíces de un edificio































