OFICINA DATA ASESORES
AÑO: 2021
UBICACIÓN: PAMPLONA . NAVARRA
TIPO PROYECTO: REFORMA . INTERIORISMO . COMERCIAL
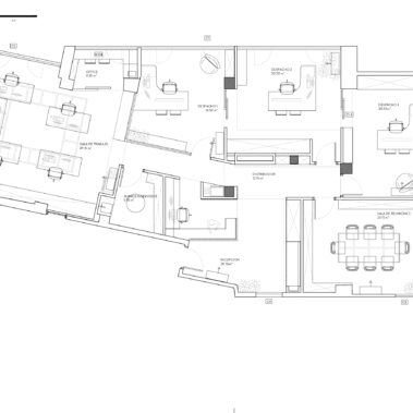
El rediseño de las oficinas de Data Asesores responde a una visión clara: fomentar la comunicación y la transparencia, tanto entre sus trabajadores como con sus clientes. Para ello, hemos concebido un espacio abierto, flexible y dinámico, donde la distribución fluye de manera natural.
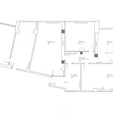
La arquitectura del lugar se estructura en torno a grandes ventanales, que maximizan la entrada de luz natural, y un giro de plano estratégico, que articula la conexión entre las distintas áreas. Los pilares centrales se convierten en elementos clave de la composición, dotando al espacio de carácter y solidez. Además, la integración de un nuevo volumen en una de sus partes cortas ha permitido ampliar y optimizar la funcionalidad del conjunto.
El programa se organiza en una recepción cálida y acogedora, una sala de espera, una sala de reuniones con lucernario regulable, tres despachos privados, una zona de trabajo compartida, un office y un almacén. Los armarios empotrados forran las paredes para ofrecer almacenamiento discreto y accesible, manteniendo el orden y la limpieza visual.
Los materiales y acabados crean una atmósfera serena y equilibrada: maderas naturales y tonos blancos dialogan con elementos vegetales en vinilos, rafias y tejidos verdes, aportando frescura y bienestar a un entorno profesional pensado para inspirar.






































