PAMPLONA - SAN JUAN
AÑO: 2023
UBICACIÓN: PAMPLONA . NAVARRA
TIPO PROYECTO: REFORMA . INTERIORISMO
FOTOGRAFÍA: BERTA BUZUNARIZ @bertabuzunarizfotografia
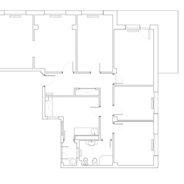
Este proyecto destaca por la reforma integral de un piso en un barrio de Pamplona, con una distribución optimizada para separar la zona privada de la pública, logrando equilibrio entre confort, estilo y funcionalidad.
La zona privada incluye dos habitaciones, un baño común y un dormitorio principal con vestidor a medida y baño privado. Cada espacio cuenta con armarios diseñados para maximizar el almacenamiento sin comprometer la estética.
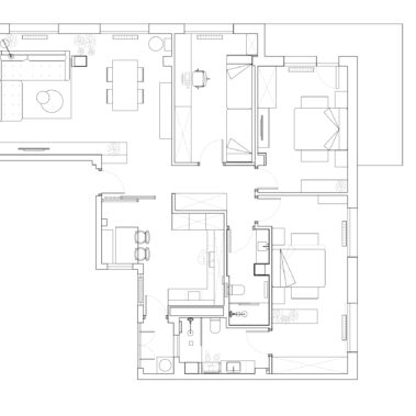
La zona pública se compone de recibidor, cocina, salón y comedor, conectados para fomentar amplitud y fluidez. La cocina, separada con un cierre de madera y cristal, permite el paso de luz natural manteniendo la delimitación de espacios.
El suelo laminado en tono roble aporta calidez y continuidad visual, complementado con un mueble de salón a medida que se extiende hasta el recibidor. Las paredes de las zonas públicas, revestidas con papel pintado en tonos neutros, suman sofisticación.
Las luces indirectas estratégicamente ubicadas crean un ambiente acogedor y resaltan los detalles arquitectónicos. Cada elemento del diseño ha sido cuidadosamente seleccionado para lograr un espacio funcional, moderno y lleno de encanto.































