PAMPLONA - SEGUNDO ENSANCHE
AÑO: 2021
UBICACIÓN: PAMPLONA / NAVARRA
TIPO PROYECTO: REFORMA + INTERIORISMO
La búsqueda de luz, esa fue la premisa de los clientes para su nueva vivienda.
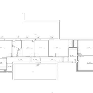
Partimos de una distribución muy compartimentada, con una ausencia de luz importante.
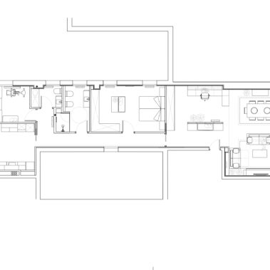
En la nueva distribución optamos por unir el recibidor con el estudio por medio de un mueble auxiliar de cajones y un cerramiento de madera vacío. Conectados con este espacio también se encuentran el salón y el comedor, enmarcados con unas fosas en el techo a modo de “alfombras”.
El blanco y la madera son los protagonistas del proyecto, con la combinación de paredes revestidas de papel para dar una sensación más acogedora.
Los baños están revestidos con una cerámica limpia y atemporal que dialoga perfectamente con el resto de la vivienda.
Las luces están estudiadas en cada espacio, focales para puntos estratégicos, colgantes y decorativas, e incluso ambientales y regulables para crear diferentes atmosferas.
El mobiliario que ya tenían los clientes encaja a la perfección con el espacio y con los nuevos muebles hechos a medida.
El resultado de esta vivienda son espacios amplios y luminosos, unido con un toque cálido para hacer más confortable vivir en este nuevo hogar.

















